























































































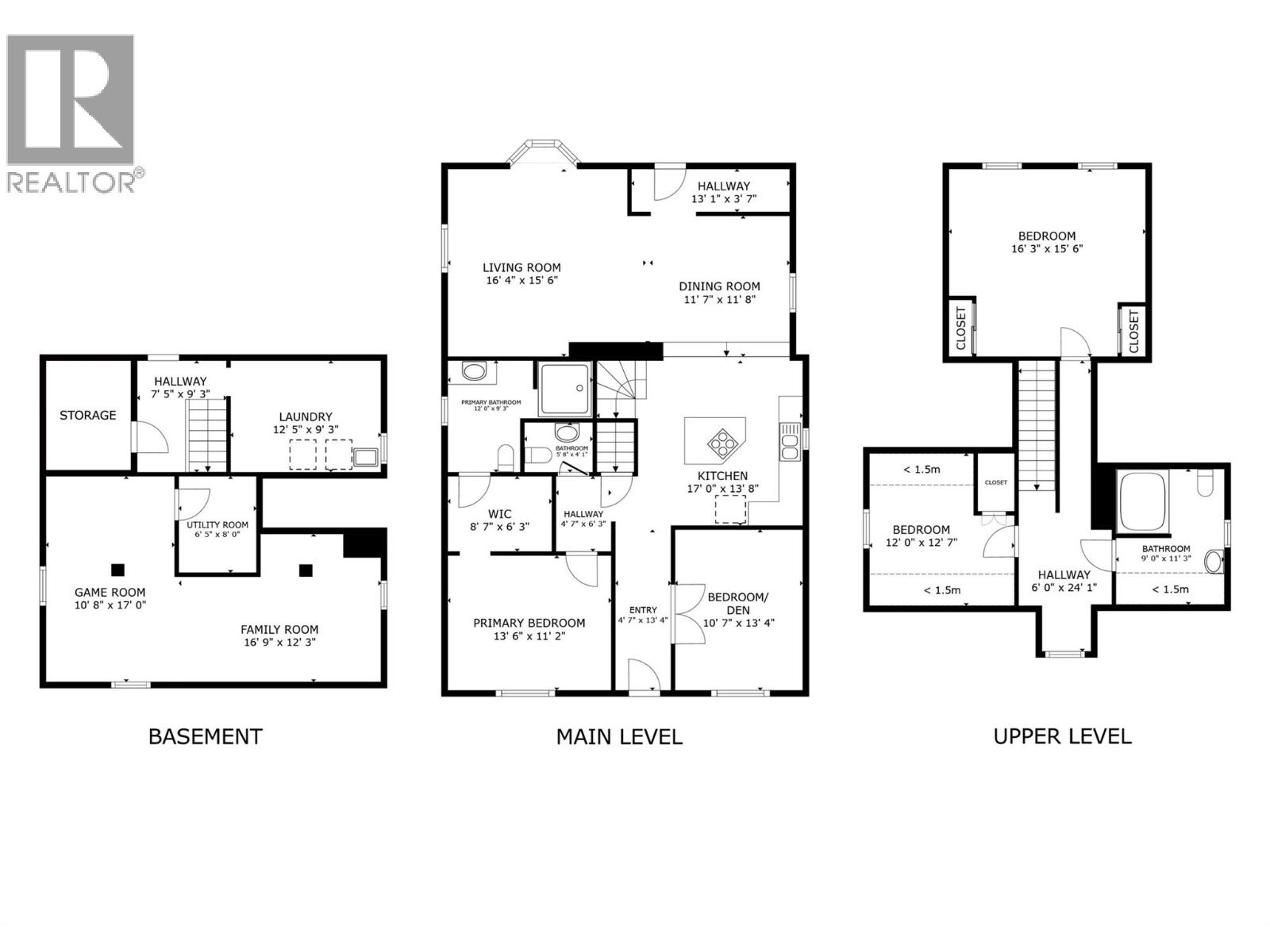
Central Kelowna four-bedroom home offering a rare mix of character, comfort, privacy and location. From the moment you enter, it’s easy to feel the charm that only a true character home can offer, with original details, warm spaces, and a sense of history carefully maintained over the years. The 2011 addition blends beautifully with the original home, adding bright, modern living space without losing the home’s original personality. The layout feels easy and welcoming, with plenty of room to gather, relax, and enjoy everyday life. Sitting on a generous lot, there’s space here that’s becoming harder and harder to find downtown. Whether you dream of gardening, hosting friends, or simply enjoying a bit more privacy, this property gives you options. The location is hard to beat, with just a few minutes' drive to Okanagan Lake, Knox Mountain, beaches, trails, and numerous amenities, including a diverse selection of local shops, cafes, and restaurants downtown. Morning kayaks or swims, sunset hikes, and casual coffee dates are all part of the lifestyle. If you are looking for a home with real character, thoughtful updates, and an unbeatable downtown setting, this one truly stands out and is ready for its next chapter. Room Measurements from Matterport floorplan and Total Square Footage from BC Assessment. (id:6770)